Subasta de solar en Sepulveda el 23 de marzo de 2026
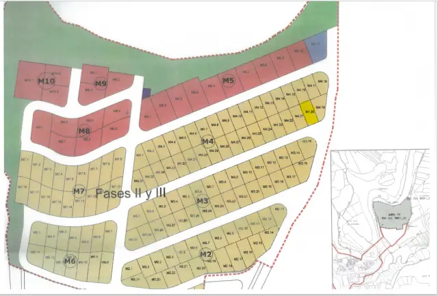
PARCELA URBANA M-4.20 Buen Hombre II,III,SEPULVEDA (SEGOVIA) - 100% PLENO DOMINIO. FINCA 4472 DE SEPÚLVEDA, QUE SEGÚN DESCRIPCIÓN REGISTRAL ES PARCELA DE TERRENO IDENTIFICADA COMO M-4-20 EN EL PROYECTO DE REPARCELACION BUENHOMBRE, FASES II Y III, EN EL CASCO URBANO DE SEPULVEDA (SEGOVIA), BARRIO DE SANTA CRUZ, CON UNA SUPERFICIE DE 250 M2, QUE LINDA. NORTE, PARCELA M-4-16, SUR , CALLE D ESTE, PARCELA M-4-19 Y OESTE, PARCELA M-4-21. PARÁMETROS URBANÍSTICOS: USO,VIVIENDA UNIFAMILIAR AISLADA. OCUPACIÓN MÁXIMA, 30%, EDIFICABILIDAD MÁX., OCUPACIÓN POR 2 PLANTAS, ALTURA MÁX.,6,50 METROS. PARCELA MÍNIMA: 450 M2 EN AISLADA, COEFICIENTE DE PARTICIPACIÓN EN EL MANTENIMIENTO Y CONSERVACIÓN DE LA URBANIZACIÓN DEL 0,33%. REF. CAT. 8931520VL3783S0000SI










Detalles de la subasta SUB-AT-2026-25R4786001380
| Descripción | 100% PLENO DOMINIO. FINCA 4472 DE SEPÚLVEDA, QUE SEGÚN DESCRIPCIÓN REGISTRAL ES PARCELA DE TERRENO IDENTIFICADA COMO M-4-20 EN EL PROYECTO DE REPARCELACION BUENHOMBRE, FASES II Y III, EN EL CASCO URBANO DE SEPULVEDA (SEGOVIA), BARRIO DE SANTA CRUZ, CON UNA SUPERFICIE DE 250 M2, QUE LINDA. NORTE, PARCELA M-4-16, SUR , CALLE D ESTE, PARCELA M-4-19 Y OESTE, PARCELA M-4-21. PARÁMETROS URBANÍSTICOS: USO,VIVIENDA UNIFAMILIAR AISLADA. OCUPACIÓN MÁXIMA, 30%, EDIFICABILIDAD MÁX., OCUPACIÓN POR 2 PLANTAS, ALTURA MÁX.,6,50 METROS. PARCELA MÍNIMA: 450 M2 EN AISLADA, COEFICIENTE DE PARTICIPACIÓN EN EL MANTENIMIENTO Y CONSERVACIÓN DE LA URBANIZACIÓN DEL 0,33%. REF. CAT. 8931520VL3783S0000SI |
|---|---|
| Identificador | SUB-AT-2026-25R4786001380 |
| Anuncio BOE | BOE-B-2026-6188 |
| Fecha de inicio | 03-03-2026 18:00:00 CET (ISO: 2026-03-03T18:00:00+01:00) |
| Fecha de conclusión | 23-03-2026 18:00:00 CET (ISO: 2026-03-23T18:00:00+01:00) |
| Tipo de subasta | AGENCIA TRIBUTARIA |
| Valor subasta | 7.812,50 € |
| Tasación | 7.812,50 € |
| Puja mínima | 781,25 € |
| Tramos entre pujas | 500,00 € |
| Importe del depósito | 390,62 € |
| Cargas | 0,00 € |
| Dirección | BO SANTA CRUZ 0 |
| Localidad | SEPULVEDA |
| Código Postal | 40300 |
| Provincia | Segovia |
| CSV Certificación registral | No disponible |
| Código | R47860 |
| Teléfono | 915986334 |
| Correo electrónico | [email protected] |
| Fax | - |
| IDUFIR | 40005000916854 |
| Referencia catastral | 8931520VL3783S0000SI |
| Información adicional | Se ejecuta la hipoteca unilateral de la inscripción 4ª, de fecha trece de Noviembre de dos mil doce, a favor de LA AGENCIA ESTATAL DE ADMINISTRACION TRIBUTARIA Información cobre cargas registrales preferentes. Importe actualizado: 0,00 euros Afecta al pago de los gastos de Urbanización según la cuota de participación establecida en el Proyecto de Reparcelación Nota Número: 3 Al Margen de Insc/Anot: 1 Tomo: 2.013 Libro: 39 Folio:107 Fecha: 03/09/2007. Caducada, pendiente de cancelación registral. La nota de afección fiscal al margen de la inscripción 2ª La nota de afección fiscal al margen de la inscripción 3ª, caducadas, pendientes de cancelación registral. Información urbanística: VER ANEXO |
| Información registral electrónica | Para este inmueble no ha sido posible emitir información registral electrónica a través del Colegio de Registradores. |
| Inscripción registral | BIEN INSCRITO EN REGISTRO DE SEPULVEDA TOMO: 2013 , FOLIO: 107 , LIBRO: 39. FINCA: 4472 , INSCRIPCIÓN: 1 |
| Situación posesoria | No consta |
| Visitable | No consta |
| Título jurídico | PLENO DOMINIO |
| Lotes | Sin lotes |
| Catastro | Ver Catastro en sedecatastro.gob.es |